Жилой комплекс «Гарфа»
Год сдачи: 2020
Жилой комплекс «Гарфа» - это уникальный проект для ценителей дизайна и любителей городского стиля жизни. Находится он рядом с одноименным торговым центром, в нескольких минутах ходьбы от станции метро Ческоморавска (Českomoravská). Добраться до самого центра города отсюда можно за 10-15 минут. Здание жилого комплекса отличается не только необычным экстерьером, но и интересной, качественной отделкой: на полу положен деревянный паркет с напольным отоплением по всей площади квартиры, в окнах вставлены тройные стеклопакеты, в ванных комнатах установлена дизайнерская сантехника класса люкс.
Проект «Гарфа» - это отличная возможность для инвесторов. Здесь представлено большое количество однокомнатных квартир (1+кк), наиболее популярных для аренды в Праге. На первом этаже также появится 24-часовая рецепция с консьерж-службой. С просторных террас наверху будет открываться панорамный вид на целую Прагу, а во внутреннем дворе построят ресторан и кафе.
Только зарегистрированные пользователи могут просматривать
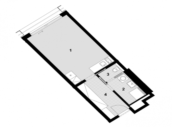
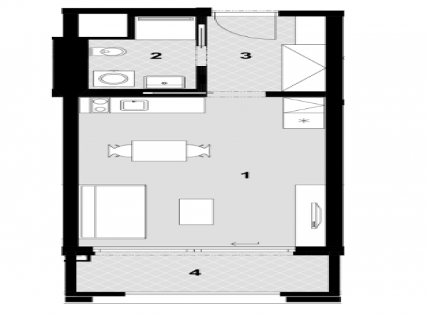
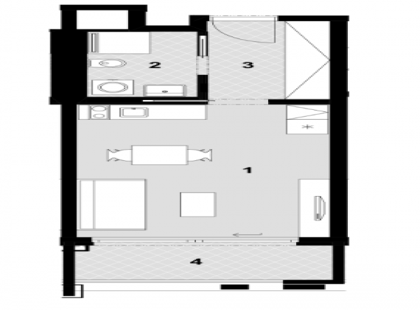
1+kk (5)
| ID | Планировка | Этаж | Площадь | Балкон/Терраса | Кладовая | Парковка | План | Цена | Запрос |
|---|---|---|---|---|---|---|---|---|---|
| 3851 | 1+kk | 4 | 35.70m2 | Регистрация |
|
||||
| 3877 | 1+kk | 7 | 32.60m2 | Регистрация |
|
||||
| 3878 | 1+kk | 7 | 32.90m2 | Регистрация |
|
||||
| 3897 | 1+kk | 8 | 44.70m2 | Регистрация |
|
||||
| 3909 | 1+kk | 9 | 40.00m2 | Регистрация |
|
Прага 9, Kurta Konráda, 190 00 Praha 9, Česko
- До центра Праги
- 15 минут на автомобиле.
- Ближайшая станция метро
- Českomoravská
- Ближайшая остановка трамвая
- Ocelářská