Резиденция «Вангард»
Год сдачи: 2020
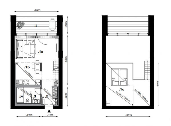
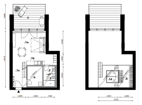
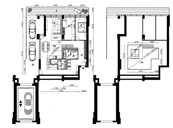
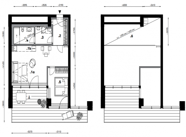
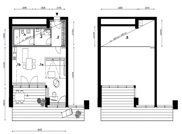
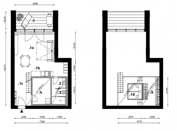
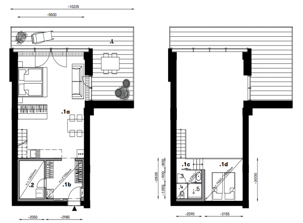
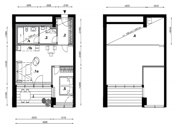
Резиденция «Вангард» - новый проект в лофтовом стиле, подобного которому в Чехии просто нет. Здесь Вы найдете как классические лофты площадью 41 m², так и пентхаусы, достигающие невероятных размеров - 795 m². Высота потолков при этом доходит до 4,5 m.
Несущая способность конструкций очень велика, поэтому Вы запросто сможете соорудить даже бассейн посередине гостиной. Целое здание выделяется нетипично высокими потолками и панорамными окнами. Создается ощущение, как будто солнце полностью заливает жилой дом своим светом. Благодаря автомобильному лифту Вы сможете припарковать свое авто прямо в собственном лофте, рядом с диваном в гостиной. Порой даже язык не поворачивается назвать такое уникальное жилье обычным словом «апартамент». Цены по запросу!
Только зарегистрированные пользователи могут просматривать
1+kk (4)
| ID | Планировка | Этаж | Площадь | Балкон/Терраса | Кладовая | Парковка | План | Цена | Запрос |
|---|---|---|---|---|---|---|---|---|---|
| 4083 | 1+kk | 4 | 46.00m2 | Регистрация |
|
||||
| 4084 | 1+kk | 5 | 95.90m2 | Регистрация |
|
||||
| 4085 | 1+kk | 5 | 64.80m2 | Регистрация |
|
||||
| 4086 | 1+kk | 7 | 95.90m2 | Регистрация |
|
2+kk (7)
| ID | Планировка | Этаж | Площадь | Балкон/Терраса | Кладовая | Парковка | План | Цена | Запрос |
|---|---|---|---|---|---|---|---|---|---|
| 4087 | 2+kk | 4 | 77.60m2 | Регистрация |
|
||||
| 4088 | 2+kk | 9 | 73.90m2 | Регистрация |
|
||||
| 4089 | 2+kk | 12 | 95.90m2 | Регистрация |
|
||||
| 4090 | 2+kk | 8 | 65.00m2 | Регистрация |
|
||||
| 4091 | 2+kk | 7 | 85.80m2 | Регистрация |
|
||||
| 4092 | 2+kk | 6 | 95.20m2 | Регистрация |
|
||||
| 4093 | 2+kk | 5 | 85.40m2 | Регистрация |
|
3+kk (3)
| ID | Планировка | Этаж | Площадь | Балкон/Терраса | Кладовая | Парковка | План | Цена | Запрос |
|---|---|---|---|---|---|---|---|---|---|
| 4094 | 3+kk | 12 | 120.20m2 | Регистрация |
|
||||
| 4095 | 3+kk | 11 | 191.20m2 | Регистрация |
|
||||
| 4096 | 3+kk | 10 | 120.20m2 | Регистрация |
|