brigerd@brigerd.cz
+(420) 608 364 608
Валюта на сайте: CZK
CZK
EUR
USD
Регистрация
Войти
НОВОСТРОЙКИ В ПРАГЕ
Прага 1
Прага 2
Прага 3
Прага 4
Прага 5
Прага 6
Прага 7
Прага 8
Прага 9
Прага 10
Пригород
Главная
Проекты
Резиденция «Вангард»
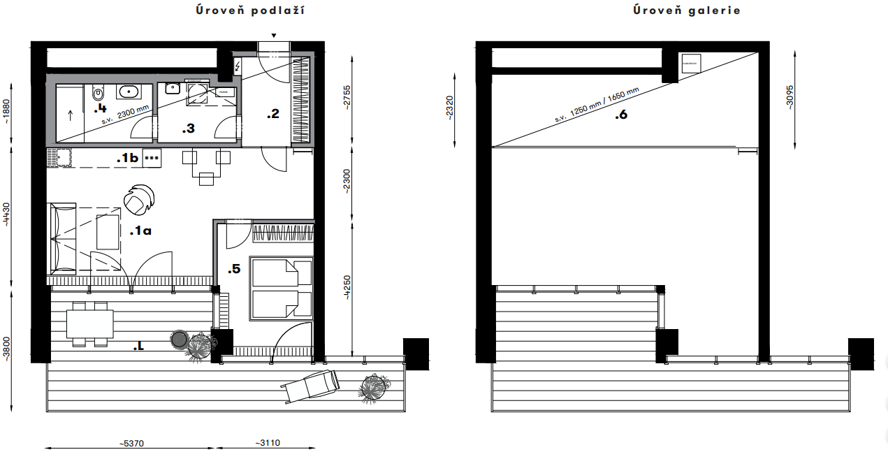
Квартира 2+kk | 4092
Квартира 2+kk | 4092
Этаж
6
Планировка
2+kk
Площадь
95.20m
2
Балкон
29.20m
2
Парковка
Напишите нам
Имя
Телефон
E-mail
Введите текст сообщения
Отправить